不動産 おすすめの売買物件

[新築 建売り住宅]リーブルガーデン 東区久保 第2


岡山県岡山市東区久保の新築 一戸建て 分譲住宅の外観写真
 販売価格  ご成約済み

 所在地  岡山県岡山市東区久保

 学区  雄神小学校 西大寺中学校

 公共交通  赤穂線「西大寺」駅 徒歩13分

 土地面積  154.08㎡

 建物面積  110.95㎡

 間取り  木造2階建 4LDK

完成時期  2021年11月予定(新築)

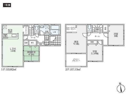
岡山県岡山市東区久保の新築 一戸建て分譲住宅の間取り図
間取り図
岡山県岡山市東区久保の新築 一戸建て分譲住宅の区画図
区画図


売買物件 インフォメーション

-オープンハウス- 毎週土・日、祝日 10:00〜17:00 開催中!

事前にご予約をお願いいたします。弊社スタッフが現地へご案内いたします。

開催日時以外でもご都合の良い日時でのご予約も可能です。お問い合わせ下さい。

雄神小・西大寺中学区に1棟、11月に完成予定!

オール電化住宅(エコキュート)

駐車場:2~3台駐車可、バス停:両備バス「西大寺駅」徒歩13分

住宅性能評価書 ダブル取得住宅!「設計性能評価」「建築性能評価(取得予定)」

耐震等級など4項目で最高等級!

入居後も安心の10年保証!


物件写真

周辺環境 / 地図

小学校 / 雄神小学校:徒歩19分(1500m)
中学校 / 西大寺中学校:徒歩18分(1400m)
病院 / 徒歩11分(850m
郵便局 / 徒歩14分(1100m)
銀行 / 徒歩19分(1500m)

スーパー / 徒歩2分(160m)
コンビニ / 徒歩12分(950m)
ドラッグストア / 徒歩4分(290m)

物件の概要 / 設備 構造 特徴など

土地権利:所有権 / 用途地域:第1種住居地域 / 販売戸数:1戸

設備:中国電力(オール電化)、公営水道、公共下水

設計住宅性能評価書/建設住宅性能評価書(取得予定)/フラット35・S適合証明書/フラット35Sに対応(金利Aプラン)/地盤調査済/駐車2〜3台可/スーパー徒歩10分以内/南向き/システムキッチン/浴室乾燥機/陽当り良好/全居室収納/駅まで平坦/閑静な住宅地/LDK15畳以上/和室/整形地/庭/シャワー付洗面化粧台/対面式キッチン/トイレ2ヶ所/自然素材使用/浴室1坪以上/2階建/南面バルコニー/全室南向き/オートバス/温水洗浄便座/南庭/床下収納/浴室に窓/TVモニタ付インターホン/節水型トイレ/前面棟無/通風良好/パントリー(食器・食品の収納庫)/ウォークインクローゼット/IHクッキングヒーター/全居室複層ガラスか複層サッシ/全室2面採光/インナーバルコニー/平坦地/オール電化(エコキュート)/浄水器/スマートキー/すまい給付金対応

建築確認番号:第R03SHC110391号 / 取引態様:媒介

登録情報更新日:2021.11.15 次回更新日:情報提供より8日以内

ご相談、ご案内から物件見学、お見積りも無料です。お気軽にお問い合わせ、ご相談ください。