不動産 おすすめの売買物件

[新築 建売り住宅]倉敷市浜町 全2棟

価格変更!値下げしました。



倉敷市浜町の新築 一戸建て 分譲住宅の外観写真
 販売価格  ご成約済み

 所在地  岡山県倉敷市浜町

 学区  万寿小学校 東中学校

 公共交通  山陽本線「倉敷」駅 徒歩14分

 土地面積  170.22㎡

 建物面積  110.95㎡

 間取り  木造2階建 4LDK

完成時期  2022年6月(新築)

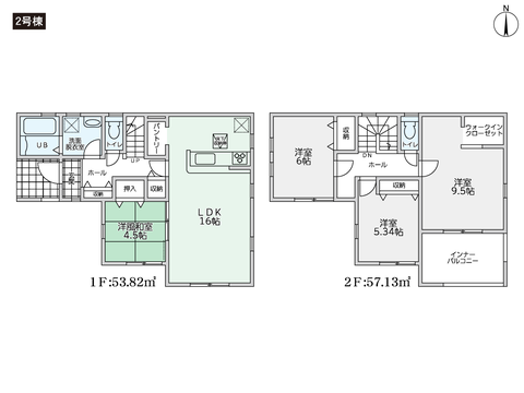
倉敷市浜町の新築 一戸建て分譲住宅の間取り図
間取り図
倉敷市浜町の新築 一戸建て分譲住宅の区画図
区画図


売買物件 インフォメーション

敷地面積50坪以上!近隣商業施設充実!

万寿小学校まで徒歩5分!東中学校まで徒歩9分!

駐車場:2~3台駐車可、バス停:両備バス「倉敷駅北口」徒歩14分

住宅性能評価書 ダブル取得住宅!「設計性能評価」「建築性能評価(新築時)」

耐震等級など6項目で最高等級!

入居後も安心の10年保証!

フラット35Sに対応(金利Aプラン)


物件写真

周辺環境 / 地図

小学校 / 万寿小学校:徒歩5分(350m)
中学校 / 東中学校:徒歩9分(700m)
病院 / 徒歩10分(800m
郵便局 / 徒歩3分(240m)
銀行 / 徒歩17分(1300m)

スーパー / 徒歩7分(550m)
コンビニ / 徒歩5分(400m)
ドラッグストア / 徒歩7分(550m)

物件の概要 / 設備 構造 特徴など

土地権利:所有権 / 地目:宅地 / 用途地域:第2種住居地域  / 建ぺい率:60% / 容積率:200%

接道:西側4m公道

設備:中国電力、都市ガス、公営水道、公共下水

販売戸数:1戸

設計住宅性能評価書/建設住宅性能評価書(新築時)/フラット35・S適合証明書/フラット35Sに対応(金利Aプラン)/地盤調査済/駐車2〜3台可/土地50坪以上/省エネ給湯器/スーパー徒歩10分以内/市街地が近い/南向き/システムキッチン/浴室乾燥機/陽当り良好/全居室収納/駅まで平坦/閑静な住宅地/LDK15畳以上/和室/整形地/庭/シャワー付洗面化粧台/対面式キッチン/トイレ2ヶ所/自然素材使用/浴室1坪以上/2階建/南面バルコニー/オートバス/温水洗浄便座/床下収納/浴室に窓/TVモニタ付インターホン/節水型トイレ/前面棟無/通風良好/パントリー(食器・食品の収納庫)/ウォークインクローゼット/全居室複層ガラスか複層サッシ/全室2面採光/小学校徒歩10分以内/インナーバルコニー/平坦地/浄水器/スマートキー

取引態様:媒介

登録情報更新日:2022.10.18 次回更新日:情報提供より8日以内

ご相談、ご案内から物件見学、お見積りも無料です。お気軽にお問い合わせ、ご相談ください。