不動産 おすすめの売買物件

[新築 建売り住宅]リーブルガーデン 児島味野4丁目

価格変更!値下げしました。



岡山県倉敷市児島味野の新築 一戸建て 分譲住宅の外観写真
5月中旬撮影
 販売価格  ご成約済み

 所在地  岡山県倉敷市児島味野

 学区  味野小学校 味野中学校

 公共交通  本四備讃線「児島」駅 徒歩13分

 土地面積  143.52㎡〜162.43㎡

 建物面積  102.67㎡〜112.33㎡

 間取り  木造2階建 4LDK , 4LDK+S

完成時期  2020年10月予定(新築)

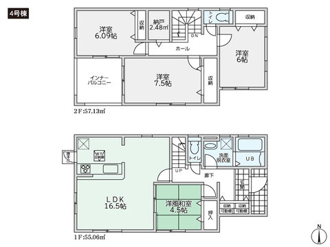
岡山県倉敷市児島味野の新築 一戸建て分譲住宅の間取り図
間取り図
岡山県倉敷市児島味野の新築 一戸建て分譲住宅の区画図
区画図


売買物件 インフォメーション

暮らしやすい人気の味野エリア!

味野小学校まで徒歩11分、味野中学校まで徒歩5分

駐車場:2台駐車可、バス停:下電バス「味野元町」徒歩4分

住宅性能評価書 ダブル取得住宅!「設計性能評価」「建築性能評価(取得予定)」

耐震等級など4項目で最高等級!

入居後も安心の10年保証!


物件写真

同仕様の完成写真

周辺環境 / 地図

小学校 / 味野小学校:徒歩11分(850m)
中学校 / 味野中学校:徒歩5分(350m)
病院 / 徒歩12分(900m
郵便局 / 徒歩3分(230m)
銀行 / 徒歩7分(500m)

スーパー / 徒歩7分(550m)
コンビニ / 徒歩6分(450m)
ドラッグストア / 徒歩8分(600m)

物件の概要 / 設備 構造 特徴など

土地権利:所有権 / 用途地域:第1種住居地域 / 販売戸数:1戸

設備:中国電力、プロパンガス、公営水道、公共下水

設計住宅性能評価書/住宅性能評価書(取得予定)/フラット35・S適合証明書/フラット35Sに対応(金利Aプラン)/地盤調査済/駐車2台可/年内入居可/省エネ給湯器/スーパー徒歩10分以内/市街地が近い/南向き/システムキッチン/浴室乾燥機/陽当り良好/全居室収納/駅まで平坦/閑静な住宅地/LDK15畳以上/角地/和室/庭/シャワー付洗面化粧台/対面式キッチン/トイレ2ヶ所/自然素材使用/浴室1坪以上/2階建/南面バルコニー/オートバス/温水洗浄便座/床下収納/浴室に窓/TVモニタ付インターホン/節水型トイレ/前面棟無/通風良好/ウォークインクローゼット/全居室複層ガラスか複層サッシ/シューズインクローク/平坦地/浄水器/すまい給付金対応

建築確認番号:第H31SHC114447号、第H31SHC114448号、第H31SHC114449号、第H31SHC114450号 / 取引態様:媒介

登録情報更新日:2020.10.19 次回更新日:情報提供より8日以内

ご相談、ご案内から物件見学、お見積りも無料です。お気軽にお問い合わせ、ご相談ください。