不動産 おすすめの売買物件

[新築 建売り住宅]リーブルガーデン 倉敷連島町鶴新田 第12


岡山県倉敷市連島町鶴新田の新築 一戸建て 分譲住宅の外観写真
5月中旬撮影
 販売価格  ご成約済み

 所在地  岡山県倉敷市連島町鶴新田

 学区  連島南小学校 連島南中学校

 公共交通  水島臨海鉄道「常盤」駅 徒歩49分

 土地面積  167.65㎡

 建物面積  110.95㎡

 間取り  木造2階建 4LDK

完成時期  2021年9月予定(新築)

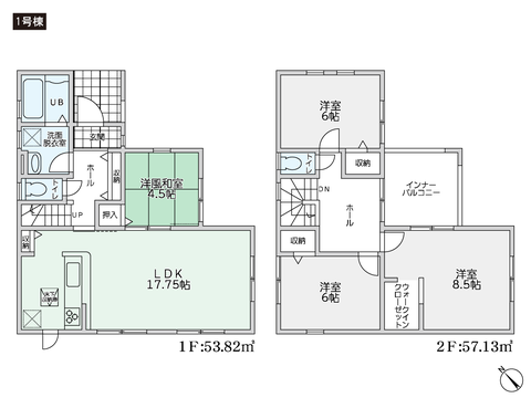
岡山県倉敷市連島町鶴新田の新築 一戸建て分譲住宅の間取り図
間取り図
岡山県倉敷市連島町鶴新田の新築 一戸建て分譲住宅の区画図
区画図


売買物件 インフォメーション

連島南小学校まで950m(徒歩12分)連島南中学校まで650m(徒歩9分)

毎日の生活に必要な主要施設が徒歩10分圏内!

駐車場:2台駐車可、バス停:両備バス「ヘラ取神社前」徒歩13分

住宅性能評価書 ダブル取得住宅!「設計性能評価」「建築性能評価(取得予定)」

耐震等級など4項目で最高等級!

入居後も安心の10年保証!


物件写真

同仕様の完成写真

周辺環境 / 地図

小学校 / 連島南小学校:徒歩12分(950m)
中学校 / 連島南中学校:徒歩9分(650m)
病院 / 徒歩9分(700m
郵便局 / 徒歩8分(600m)
銀行 / 徒歩7分(550m)

スーパー / 徒歩8分(600m)
コンビニ / 徒歩5分(400m)
ドラッグストア / 徒歩10分(800m)

物件の概要 / 設備 構造 特徴など

土地権利:所有権 / 用途地域:第1種住居地域 / 販売戸数:1戸

設備:中国電力、都市ガス、公営水道、公共下水

設計住宅性能評価書/建設住宅性能評価書(取得予定)/フラット35・S適合証明書/フラット35S(金利Aプラン)に対応/地盤調査済/駐車2台可/土地50坪以上/省エネ給湯器/スーパー徒歩10分以内/南東向き/システムキッチン/浴室乾燥機/陽当り良好/全居室収納/駅まで平坦/閑静な住宅地/LDK15畳以上/総合病院徒歩10分以内/角地/和室/庭/田園風景/シャワー付洗面化粧台/対面式キッチン/トイレ2ヶ所/自然素材使用/浴室1坪以上/2階建/インナーバルコニー/オートバス/温水洗浄便座/床下収納/浴室に窓/TVモニタ付インターホン/節水型トイレ/前面棟無/通風良好/ウォークインクローゼット/全居室複層ガラスか複層サッシ/全室2面採光/都市ガス/平坦地/開発分譲地内/浄水器/すまい給付金対応

建築確認番号:第R03SHC105236号 / 取引態様:媒介

登録情報更新日:2021.6.14 次回更新日:情報提供より8日以内

ご相談、ご案内から物件見学、お見積りも無料です。お気軽にお問い合わせ、ご相談ください。