不動産 おすすめの売買物件

[新築 建売り住宅]リーブルガーデン 総社市小寺 第2

価格変更!値下げしました。



岡山県総社市小寺の新築 一戸建て 分譲住宅の外観写真
 販売価格  ご成約済み

 所在地  岡山県総社市小寺

 学区  総社小学校 総社東中学校

 公共交通  吉備線「東総社」駅 徒歩4分

 土地面積  166.26㎡〜192.44㎡

 建物面積  104.33㎡〜105.99㎡

 間取り  木造2階建 4LDK , 4LDK+S

完成時期  2020年3月(新築)

岡山県総社市小寺の新築 一戸建て分譲住宅の間取り図
間取り図
岡山県総社市小寺の新築 一戸建て分譲住宅の区画図
区画図

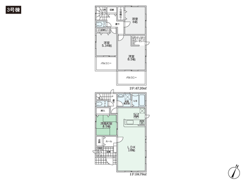
岡山県総社市小寺の新築 一戸建て分譲住宅の間取り図
間取り図


売買物件 インフォメーション

駅近!徒歩4分

総社小(620m)総社東中学区

住宅性能評価書 ダブル取得住宅!「設計性能評価」「建築性能評価(取得予定)」

耐震等級など4項目で最高等級!

入居後も安心の10年保証!


1号棟

3号棟

周辺環境 / 地図

小学校 / 総社小学校:徒歩8分(620m)
中学校 / 総社東中学校:徒歩13分(1010m)
病院 / 徒歩7分(550m
郵便局 / 徒歩12分(900m)
銀行 / 徒歩13分(1000m)

スーパー / 徒歩10分(800m)
コンビニ / 徒歩5分(350m)
ドラッグストア / 徒歩6分(450m)

物件の概要 / 設備 構造 特徴など

土地権利:所有権 / 用途地域:第1種低層住居専用地域 / 販売戸数:2戸

設備:中国電力、プロパンガス、公営水道、公共下水

設計住宅性能評価書/建設住宅性能評価書/フラット35・S適合証明書/フラット35Sに対応(金利Aプラン)/地盤調査済/駐車3台可/即入居可/土地50坪以上/省エネ給湯器/スーパー徒歩10分以内/市街地が近い/南東向き/システムキッチン/浴室乾燥機/陽当り良好/全居室収納/駅まで平坦/閑静な住宅地/LDK15畳以上/和室/庭/シャワー付洗面化粧台/対面式キッチン/トイレ2ヶ所/自然素材使用/浴室1坪以上/2階建/南面バルコニー/オートバス/温水洗浄便座/床下収納/浴室に窓/TVモニタ付インターホン/節水型トイレ/前面棟無/通風良好/ウォークインクローゼット/全居室複層ガラスか複層サッシ/シューズインクローク/小学校徒歩10分以内/平坦地/納戸/浄水器/すまい給付金対応

取引態様:媒介

登録情報更新日:2020.10.19 次回更新日:情報提供より8日以内

ご相談、ご案内から物件見学、お見積りも無料です。お気軽にお問い合わせ、ご相談ください。